川越市的場第38 全1棟

【間取り】の画像

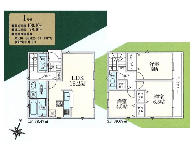
【間取り】 3LDK

【区画図】の画像

【区画図】 全1棟

【間取り】の画像 間取り
【区画図】の画像 区画図

新築一戸建

価格
2,590万円 支払いシミュレーション
所在地
埼玉県川越市大字的場 MAP
交通
川越線「的場」駅徒歩19分
間取り
3LDK
建物面積(坪数)
78.16㎡ (23.64坪)
土地面積(坪数)
公簿 : 100.10㎡ (30.28坪)
築年月(築年数)
2026年 3月 (予定)

まずはご相談ください!

049-256-7142

営業時間
10:00~19:00
定休日
なし

担当者スタッフより

室伏一輝

おすすめポイント

JCBギフト券1万円分プレゼント!当社より本物件をご購入の方に!その他のサービスについては下記『担当者(スタッフ)のコメント』をご確認ください。

室伏一輝 ()

当社より本物件ご購入のお客様は仲介手数料半額にてご紹介致します。

◎住環境良好
・小・中学校徒歩10分圏内でお子様の登下校も安心です
・開放感のある北東角地です
・日々の疲れを癒す喧噪から離れた閑静な住宅地
・スーパーやドラッグストアも徒歩圏内で毎日のお買い物に便利な立地です

◎間取り
・収納豊富でお部屋もスッキリ片付きます
・ご家族との会話が増える対面キッチンを採用・お子さまの成長を見守れます
・キッチンにある床下収納庫は日用品の整理・収納に重宝します
・全室2面採光で明るいお住まい、窓を開ければ心地よい風が吹き抜けます

◎充実の設備・仕様
・カースペース並列2台可能です
・セキュリティ面でも安心の人感センサー・防犯カメラ付き
・ペアガラスで暑い夏や寒い冬も外気からお部屋を守ります

まずはご相談ください!

営業時間
10:00~19:00
定休日
なし

物件概要

物件番号:99691515 /  情報更新日:2026年02月09日 /  更新予定日:2026年02月23日 /  取引条件の有効期限:2026年02月23日 情報の見方
価格 2,590万円 支払いシミュレーション 所在地 埼玉県川越市大字的場 MAP
交通 川越線「的場」駅徒歩19分
東武東上線「霞ヶ関」駅徒歩33分
西武新宿線「南大塚」駅徒歩51分車11分 4.3km
間取り(詳細) 3LDK LDK 15.2帖 1室/洋室 4.5帖 1室/洋室 6.0帖 1室/洋室 6.5帖 1室
建物面積(坪数) 78.16㎡(23.64坪) 土地面積(坪数) 公簿 : 100.10㎡(30.28坪)
土地権利 所有権 築年月(築年数) 2026年 3月 (予定)
階建て / 建物構造 2階建て / 木造 向き 南東
地目 / 地勢 宅地 / - 傾斜地部分面積 /
路地状敷地
- / -
接道状況 角地(北 公道 4.2m)(東 公道 4.2m) 建ぺい率 / 容積率 50% / 80%
用途地域 第一種低層住居専用 都市計画 市街化区域
駐車場 / 月額料金 有(2台) / 0円 土地の敷金 / 保証金 -
借地料 / 借地期間 - / - 私道負担面積 /
セットバック
- / 無
現況 / 引渡時期 未完成 / 2026年3月- 取引態様 仲介
建築確認番号 第KBI-SGM25-10-4517号 国土法届出要否 不要
法令上の制限 文化財保護法/景観法/宅地造成及び特定盛土等規制法 販売区画数 / 総区画数 1区画 / 1区画
設備条件
  • 日当たり良好
  • 閑静な住宅地
  • バリアフリー
  • キャンペーン
  • 室内洗濯機置場
  • バルコニー
  • 都市ガス
  • 公営水道
  • 公共下水
  • 24時間換気システム
  • 電気有
  • 耐震構造
  • ガスコンロ
  • コンロ2口以上
  • システムキッチン
  • 対面式キッチン
  • コンロ3口
  • カウンターキッチン
  • バス・トイレ別
  • 追焚機能浴室
  • 浴室乾燥機
  • 温水洗浄便座
  • 洗髪洗面化粧台
  • トイレ2ヶ所
  • 浴室1坪以上
  • 床下収納
  • TVモニタ付インターホン
  • 複層ガラス
  • ディンプルキー
  • 防犯カメラ
備考 都市ガス・本下水 カースペース2台可 フラット35S対応(別途費用が必要です) 角地

地図

※地図上に表示される物件の位置は付近住所に所在することを表すものであり、実際の物件所在地とは異なる場合がございます。

まずはご相談ください!

営業時間
10:00~19:00
定休日
なし

取り扱い店舗(住まいのトータルアドバイザー 東武住販)

住まいのトータルアドバイザー 東武住販の画像

所在地
埼玉県ふじみ野市上福岡1丁目15-7 
電話番号
049-256-7142
営業時間
10:00~19:00
定休日
なし

支払いシミュレーションこの物件を購入した場合の、月々の支払い価格の一例です。借り入れを保証するものではございません。

返済期間
金利
ボーナス時の増額(1回分)
借入金額
頭金

※元利均等方式金利5.00%まで※返済年数5~50年まで入力できます

※ボーナスは年2回で計算しています。1000万円まで入力できます

毎月の返済額

まずはご相談ください!

営業時間
10:00~19:00
定休日
なし