所沢市小手指南3期

【間取り】の画像

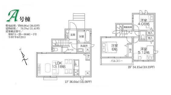
【間取り】 3LDK

【外観】の画像

【外観】 日当たり良好です

【区画図】の画像

【区画図】 全1棟

【外観】の画像

【外観】 小手指駅徒歩31分

【前面道路含む現地写真】の画像

【前面道路含む現地写真】 住環境良好です

【前面道路含む現地写真】の画像

【前面道路含む現地写真】 都市ガス・本下水

【駐車場】の画像

【駐車場】 並列2台駐車可能です

【玄関】の画像

【玄関】 ゆったりとした玄関です

【玄関】の画像

【玄関】 収納もある玄関です

【セキュリティ】の画像

【セキュリティ】 TVモニター付インターホン

【】の画像

【】 換気リモコン

【】の画像

【】 給湯リモコン

【独立洗面台】の画像

【独立洗面台】 朝の身支度には欠かせない独立洗面化粧台

【】の画像

【】 ランドリースペース

【】の画像

【】 洗面室

【トイレ】の画像

【トイレ】 落ち着いた色調のトイレです

【浴室】の画像

【浴室】 ゆったり過ごせるお風呂です

【キッチン】の画像

【キッチン】 お料理しやすいキッチンです

【キッチン】の画像

【キッチン】 キッチン床下収納庫

【居間・リビング】の画像

【居間・リビング】 こちらの13.18帖のリビングで趣味の時間をお楽しみください

【居間・リビング】の画像

【居間・リビング】 開放感があり日当たり良好です

【ダイニング】の画像

【ダイニング】 食卓を囲むダイニング

【寝室】の画像

【寝室】 洋室6.0帖、寝室にいかがでしょうか

【収納】の画像

【収納】 洋室6.0帖収納

【子供部屋】の画像

【子供部屋】 洋室5.12帖、お子さんのお部屋にいかがでしょうか

【収納】の画像

【収納】 洋室5.12帖収納

【洋室】の画像

【洋室】 落ち着いた色調の4.06帖の洋室です

【収納】の画像

【収納】 洋室4.06帖収納

【バルコニー】の画像

【バルコニー】 開放的で明るい空間を演出してくれるバルコニーです

【展望】の画像

【展望】 閑静な住宅地です

【間取り】の画像 間取り
【外観】の画像 外観
【区画図】の画像 区画図
【外観】の画像 外観
【前面道路含む現地写真】の画像 前面道路含む現地写真
【前面道路含む現地写真】の画像 前面道路含む現地写真
【駐車場】の画像 駐車場
【玄関】の画像 玄関
【玄関】の画像 玄関
【セキュリティ】の画像 セキュリティ
【】の画像
【】の画像
【独立洗面台】の画像 独立洗面台
【】の画像
【】の画像
【トイレ】の画像 トイレ
【浴室】の画像 浴室
【キッチン】の画像 キッチン
【キッチン】の画像 キッチン
【居間・リビング】の画像 居間・リビング
【居間・リビング】の画像 居間・リビング
【ダイニング】の画像 ダイニング
【寝室】の画像 寝室
【収納】の画像 収納
【子供部屋】の画像 子供部屋
【収納】の画像 収納
【洋室】の画像 洋室
【収納】の画像 収納
【バルコニー】の画像 バルコニー
【展望】の画像 展望

新築一戸建

価格
2,490万円 支払いシミュレーション
所在地
埼玉県所沢市小手指南6丁目 MAP
交通
西武池袋線「小手指」駅バス5分 「高峰(埼玉県)」 停歩4分
間取り
3LDK
建物面積(坪数)
70.79㎡ (21.41坪)
土地面積(坪数)
公簿 : 88.06㎡ (26.63坪)
築年月(築年数)
2025年 8月 (新築)

まずはご相談ください!

049-256-7142

営業時間
10:00~19:00
定休日
なし

担当者スタッフより

室伏一輝

おすすめポイント

JCBギフト券1万円分プレゼント!当社より本物件をご購入の方に!その他のサービスについては下記『担当者(スタッフ)のコメント』をご確認ください。

室伏一輝 ()

当社より本物件ご購入のお客様は仲介手数料半額にてご紹介致します。

【営業時間 10:00~18:00】
この時間帯はお電話でのお問い合わせがスムーズです。

住み替えをご希望の方は自社買取保証付売却プランがございます。お気軽にお問い合わせください。

●小手指駅徒歩31分
●並列2台駐車可能
●浄水器
●都市ガス・本下水

◇当社の強みは
(1)リフォーム(当社でも再販事業を行っている為、お客様に最適なプランをご提供できます。)
(2)注文住宅のご紹介(提携ハウスメーカー7社を保有しておりますので、ご予算・ご希望に合ったプランをご紹介できます。)

◇ふじみ野市、川越市、富士見市周辺に限らず東武東上線・川越線・越生線全域の売買情報など、住まいに関する不動産情報を豊富に取り揃えております。またリフォームの相談も承ります。不動産情報をお探しなら、東武住販までお気軽にお問合せください。

まずはご相談ください!

営業時間
10:00~19:00
定休日
なし

物件概要

物件番号:98226190 /  情報更新日:2025年11月11日 /  更新予定日:2025年11月25日 /  取引条件の有効期限:2025年11月25日 情報の見方
価格 2,490万円 支払いシミュレーション 所在地 埼玉県所沢市小手指南6丁目 MAP
交通 西武池袋線「小手指」駅バス5分 「高峰(埼玉県)」 停歩4分
西武狭山線「下山口」駅徒歩21分
西武狭山線「西武球場前」駅徒歩25分
間取り(詳細) 3LDK LDK 13.1帖 1室/洋室 6.0帖 1室/洋室 5.1帖 1室/洋室 4.0帖 1室
建物面積(坪数) 70.79㎡(21.41坪) 土地面積(坪数) 公簿 : 88.06㎡(26.63坪)
土地権利 所有権 築年月(築年数) 2025年 8月 (新築)
階建て / 建物構造 2階建て / 木造 向き 南西
地目 / 地勢 宅地 / - 傾斜地部分面積 /
路地状敷地
- / -
接道状況 一方(北東 私道 4.2m) 建ぺい率 / 容積率 50% / 80%
用途地域 第一種低層住居専用 都市計画 市街化区域
駐車場 / 月額料金 有(2台) / 0円 土地の敷金 / 保証金 -
借地料 / 借地期間 - / - 私道負担面積 /
セットバック
- / 無
現況 / 引渡時期 完成済み / 即時 取引態様 仲介
建築確認番号 第HPA-25-06461-1号 国土法届出要否 不要
法令上の制限 法22条区域 販売区画数 / 総区画数 1区画 / 1区画
設備条件
  • 日当たり良好
  • 閑静な住宅地
  • バリアフリー
  • キャンペーン
  • 室内洗濯機置場
  • バルコニー
  • 都市ガス
  • 公営水道
  • 公共下水
  • 24時間換気システム
  • 電気有
  • ガスコンロ
  • コンロ2口以上
  • システムキッチン
  • 対面式キッチン
  • コンロ3口
  • カウンターキッチン
  • バス・トイレ別
  • 追焚機能浴室
  • 浴室乾燥機
  • 温水洗浄便座
  • トイレ2ヶ所
  • 浴室1坪以上
  • TVモニタ付インターホン
  • 複層ガラス
  • ディンプルキー
備考 都市ガス・本下水

地図

※地図上に表示される物件の位置は付近住所に所在することを表すものであり、実際の物件所在地とは異なる場合がございます。

まずはご相談ください!

営業時間
10:00~19:00
定休日
なし

取り扱い店舗(住まいのトータルアドバイザー 東武住販)

住まいのトータルアドバイザー 東武住販の画像

所在地
埼玉県ふじみ野市上福岡1丁目15-7 
電話番号
049-256-7142
営業時間
10:00~19:00
定休日
なし

支払いシミュレーションこの物件を購入した場合の、月々の支払い価格の一例です。借り入れを保証するものではございません。

返済期間
金利
ボーナス時の増額(1回分)
借入金額
頭金

※元利均等方式金利5.00%まで※返済年数5~50年まで入力できます

※ボーナスは年2回で計算しています。1000万円まで入力できます

毎月の返済額

まずはご相談ください!

営業時間
10:00~19:00
定休日
なし