比企郡吉見町東野第20 全3棟 2号棟

【間取り】の画像

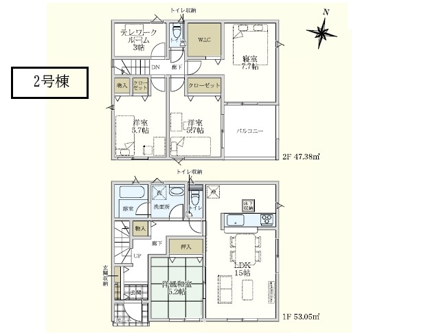
【間取り】 4SLDK

【外観】の画像

【外観】 日当たり良好です

【区画図】の画像

【区画図】 2号棟

【駐車場】の画像

【駐車場】 カースペース3台可

【前面道路含む現地写真】の画像

【前面道路含む現地写真】 閑静な住宅地です

【玄関】の画像

【玄関】 落ち着いた雰囲気の玄関です

【内装】の画像

【内装】 明るい玄関です

【トイレ】の画像

【トイレ】 1階トイレ

【独立洗面台】の画像

【独立洗面台】 忙しい朝に便利なシャワー付き洗面化粧台

【】の画像

【】 洗濯機置き場

【】の画像

【】 洗面脱衣室

【浴室】の画像

【浴室】 日々の疲れを癒すお風呂です

【】の画像

【】 浴室暖房換気乾燥機コントロールパネル

【キッチン】の画像

【キッチン】 会話が弾む対面キッチンです

【キッチン】の画像

【キッチン】 リビングを見渡せるキッチンです

【キッチン】の画像

【キッチン】 使いやすいキッチンです

【キッチン】の画像

【キッチン】 お料理を同時に作れる3口コンロ

【居間・リビング】の画像

【居間・リビング】 日当たりの良いリビングダイニングです

【居間・リビング】の画像

【居間・リビング】 ご家族が自然と集まるリビングです

【和室】の画像

【和室】 1階南西側5.2帖和室 ほっとする和室です

【居間・リビング】の画像

【居間・リビング】 広々としたリビングは15.0帖の広さです

【居間・リビング】の画像

【居間・リビング】 ゆったり過ごせるリビングです

【ダイニング】の画像

【ダイニング】 家族団らんをお楽しみ下さい

【ダイニング】の画像

【ダイニング】 食卓を囲むダイニング

【洋室】の画像

【洋室】 2階北東側7.7帖洋室 主寝室にいかがでしょうか

【収納】の画像

【収納】 2階北東側7.7帖洋室の収納です

【】の画像

【】 2階北西側3.0帖の広さのテレワークルームです

【子供部屋】の画像

【子供部屋】 2階南側5.7帖洋室 子供部屋にいかがでしょうか

【洋室】の画像

【洋室】 2階南西側5.7帖洋室 寝室にいかがでしょうか

【収納】の画像

【収納】 2階南西側5.7帖洋室の収納です

【バルコニー】の画像

【バルコニー】 風通しの良いバルコニーです

【展望】の画像

【展望】 バルコニーからの眺望です

【バルコニー】の画像

【バルコニー】 広々としたバルコニーです

【展望】の画像

【展望】 2階からの眺望です

【】の画像

【】 日用品の整理に便利な床下収納付きです

【内装】の画像

【内装】 2階内装

【間取り】の画像 間取り
【外観】の画像 外観
【区画図】の画像 区画図
【駐車場】の画像 駐車場
【前面道路含む現地写真】の画像 前面道路含む現地写真
【玄関】の画像 玄関
【内装】の画像 内装
【トイレ】の画像 トイレ
【独立洗面台】の画像 独立洗面台
【】の画像
【】の画像
【浴室】の画像 浴室
【】の画像
【キッチン】の画像 キッチン
【キッチン】の画像 キッチン
【キッチン】の画像 キッチン
【キッチン】の画像 キッチン
【居間・リビング】の画像 居間・リビング
【居間・リビング】の画像 居間・リビング
【和室】の画像 和室
【居間・リビング】の画像 居間・リビング
【居間・リビング】の画像 居間・リビング
【ダイニング】の画像 ダイニング
【ダイニング】の画像 ダイニング
【洋室】の画像 洋室
【収納】の画像 収納
【】の画像
【子供部屋】の画像 子供部屋
【洋室】の画像 洋室
【収納】の画像 収納
【バルコニー】の画像 バルコニー
【展望】の画像 展望
【バルコニー】の画像 バルコニー
【展望】の画像 展望
【】の画像
【内装】の画像 内装

新築一戸建

価格
2,280万円 支払いシミュレーション
所在地
埼玉県比企郡吉見町東野1丁目 MAP
交通
高崎線「鴻巣」駅バス17分 「丸貫」 停歩8分
間取り
4LDK+1S(納戸)
建物面積(坪数)
100.43㎡ (30.38坪)
土地面積(坪数)
公簿 : 211.08㎡ (63.85坪)
築年月(築年数)
2025年 12月 (新築)

まずはご相談ください!

049-256-7142

営業時間
10:00~19:00
定休日
なし

担当者スタッフより

室伏一輝

おすすめポイント

JCBギフト券1万円分プレゼント!当社より本物件をご購入の方に!その他のサービスについては下記『担当者(スタッフ)のコメント』をご確認ください。

室伏一輝 ()

当社より本物件ご購入のお客様は仲介手数料半額にてご紹介致します。

【営業時間 10:00~18:00】
この時間帯はお電話でのお問い合わせがスムーズです。

住み替えをご希望の方は自社買取保証付売却プランがございます。お気軽にお問い合わせください。

●カースペース3台可
●閑静な住宅地
●テレワークルーム
●充実の設備

◇当社の強みは
(1)リフォーム(当社でも再販事業を行っている為、お客様に最適なプランをご提供できます。)
(2)注文住宅のご紹介(提携ハウスメーカー7社を保有しておりますので、ご予算・ご希望に合ったプランをご紹介できます。)

◇ふじみ野市、川越市、富士見市周辺に限らず東武東上線・川越線・越生線全域の売買情報など、住まいに関する不動産情報を豊富に取り揃えております。またリフォームの相談も承ります。不動産情報をお探しなら、東武住販までお気軽にお問合せください。

まずはご相談ください!

営業時間
10:00~19:00
定休日
なし

物件概要

物件番号:101155629 /  情報更新日:2026年03月17日 /  更新予定日:2026年03月31日 /  取引条件の有効期限:2026年03月31日 情報の見方
価格 2,280万円 支払いシミュレーション 所在地 埼玉県比企郡吉見町東野1丁目 MAP
交通 高崎線「鴻巣」駅バス17分 「丸貫」 停歩8分
高崎線「北鴻巣」駅徒歩81分車16分 6.4km
東武東上線「東松山」駅徒歩88分
間取り(詳細) 4LDK+1S(納戸) LDK 15.0帖 1室/和室 5.2帖 1室/洋室 5.7帖 2室/洋室 7.7帖 1室/S 3.0帖 1室
建物面積(坪数) 100.43㎡(30.38坪) 土地面積(坪数) 公簿 : 211.08㎡(63.85坪)
土地権利 所有権 築年月(築年数) 2025年 12月 (新築)
階建て / 建物構造 2階建て / 木造 向き 南東
地目 / 地勢 宅地 / - 傾斜地部分面積 /
路地状敷地
- / -
接道状況 一方(西 公道 9.0m) 建ぺい率 / 容積率 60% / 200%
用途地域 第二種中高層住居専用 都市計画 市街化区域
駐車場 / 月額料金 有(3台) / 0円 土地の敷金 / 保証金 -
借地料 / 借地期間 - / - 私道負担面積 /
セットバック
- / 無
現況 / 引渡時期 完成済み / 即時 取引態様 仲介
建築確認番号 第25UDI1W建05416号 国土法届出要否 不要
法令上の制限 景観法/一部協定通路/宅地造成等工事規制工事区域・建基法22条・地区計画 販売区画数 / 総区画数 1区画 / 3区画
設備条件
  • 日当たり良好
  • 閑静な住宅地
  • バリアフリー
  • キャンペーン
  • 室内洗濯機置場
  • フローリング
  • 都市ガス
  • 公営水道
  • 公共下水
  • 24時間換気システム
  • 電気有
  • 耐震構造
  • ガスコンロ
  • コンロ2口以上
  • システムキッチン
  • 対面式キッチン
  • コンロ3口
  • カウンターキッチン
  • バス・トイレ別
  • 追焚機能浴室
  • 浴室乾燥機
  • 温水洗浄便座
  • 洗髪洗面化粧台
  • トイレ2ヶ所
  • 浴室1坪以上
  • 床下収納
  • ウォークインクロゼット
  • TVモニタ付インターホン
  • 複層ガラス
  • ディンプルキー
備考 宅地造成等工事規制工事区域・建基法22条・地区計画

都市ガス・本下水 カースペース3台可 フラット35SA対応(別途費用が必要です)

敷地面積に協定道路部分を含みます(1号棟:0.5平米 2号棟:44.30平米 3号棟44.16平米)

地図

※地図上に表示される物件の位置は付近住所に所在することを表すものであり、実際の物件所在地とは異なる場合がございます。

まずはご相談ください!

営業時間
10:00~19:00
定休日
なし

取り扱い店舗(住まいのトータルアドバイザー 東武住販)

住まいのトータルアドバイザー 東武住販の画像

所在地
埼玉県ふじみ野市上福岡1丁目15-7 
電話番号
049-256-7142
営業時間
10:00~19:00
定休日
なし

支払いシミュレーションこの物件を購入した場合の、月々の支払い価格の一例です。借り入れを保証するものではございません。

返済期間
金利
ボーナス時の増額(1回分)
借入金額
頭金

※元利均等方式金利5.00%まで※返済年数5~50年まで入力できます

※ボーナスは年2回で計算しています。1000万円まで入力できます

毎月の返済額

まずはご相談ください!

営業時間
10:00~19:00
定休日
なし